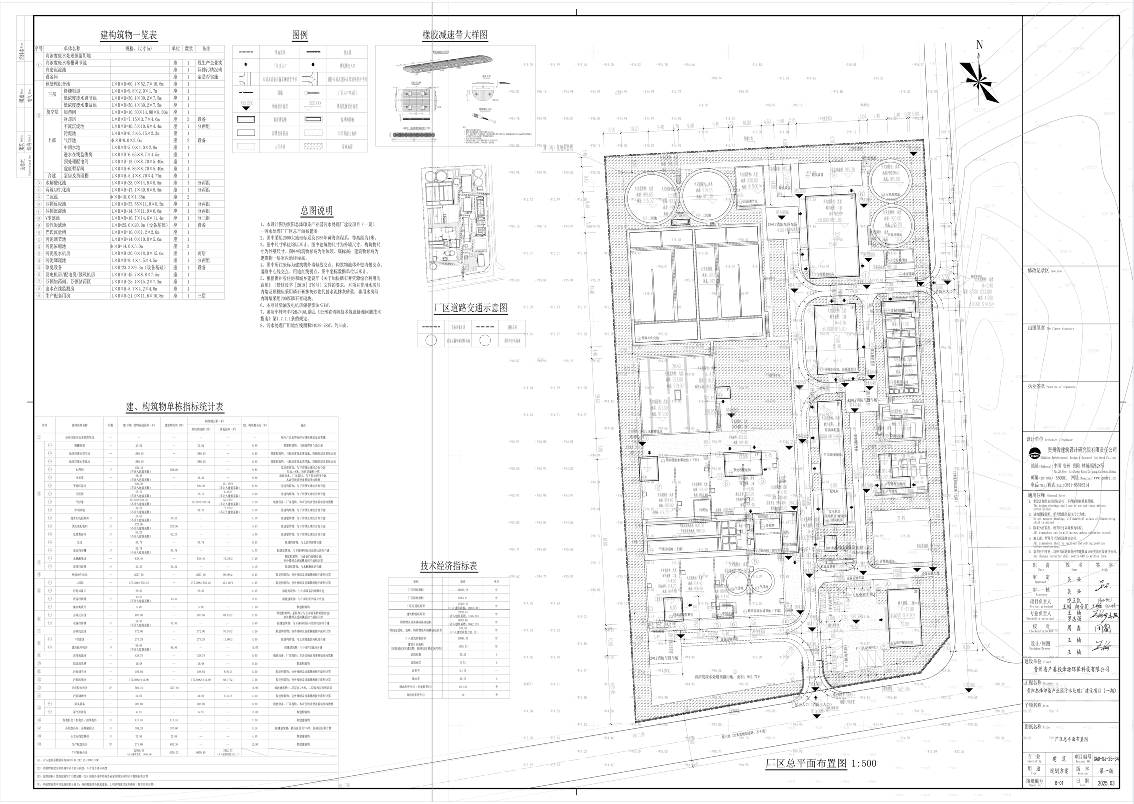
一、项目基本情况
项目名称:贵阳息烽印染产业园污水处理厂建设项目(一期)
建设单位:贵州省产基投烽源环保科技有限公司
项目建设位置:息烽县小寨坝镇潮水村
建设规模:4305.33平方米(全部为计容建筑面积。)
许可证号:建字第520122202500006号
审批部门:息烽县自然资源局
批准日期:2025年04月24日
二、已审批总图及效果图


扫一扫在手机打开当前页面
主办单位:息烽县人民政府办公室 联系方式:0851-87721549 地址:息烽县永阳街道县府路27号2号楼
息烽县人民政府版权所有 黔ICP备10201081号
公安备案号 52012202006106
技术支持:贵州多彩博虹科技有限公司 网站标识码:5201220001