一、项目基本情况
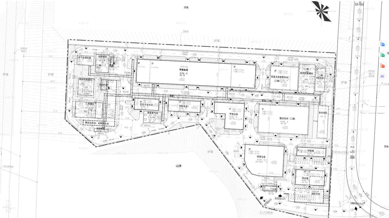
项目名称:贵州希诚新材料科技有限公司年产4700吨寡壁/单壁碳纳米管项目
建设单位:贵州希诚新材料科技有限公司
项目建设位置:息烽县小寨坝镇高家坝村
建设规模:17240.11平方米(全部为计容建筑面积。)
许可证号:建字第520122202500014号
审批部门:息烽县自然资源局
批准日期:2025年7月16日
二、已审批总图及效果图


扫一扫在手机打开当前页面
主办单位:息烽县人民政府办公室 联系方式:0851-87721549 地址:息烽县永阳街道县府路27号2号楼
息烽县人民政府版权所有 黔ICP备10201081号
贵公网安备52012202006106号
技术支持:贵州多彩博虹科技有限公司 网站标识码:5201220001