一、项目基本情况
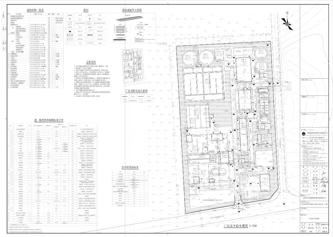
项目名称:贵阳息烽印染产业园污水处理厂建设项目(一期)
建设单位:贵州省产基投烽源环保科技有限公司
项目建设位置:息烽县小寨坝镇
申报类别:规划设计方案及建设工程规划许可证
审批部门:息烽县自然资源局
项目公示依据及地点:
公示依据:依据《中华人民共和国行政许可法》《中华人民共和国政府信息公开条例》《中华人民共和国城乡规划法》《关于城乡规划公示公开的规定》等,进行规划行政审批批准前公示。
公示类别:批前公示
公示地点:项目现场及息烽县人民政府网
公示网址:www.xifeng.gov.cn
二、规划设计方案(最终方案及经济指标以《建设工程规划许可证》及其附图为准)


三、意见反馈及联系方式
相关利害关系人如对上述批前公示内容不明确、有异议或相关意见的,可以按照以下联系方式进行咨询反映。
息烽县自然资源局地址:息烽县永阳街道玄天东路20号
业务科室(4楼) 业务咨询电话:0851-87721170 联系人:杨女士
办公室(2楼)监督电话:0851-87721298 联系人:向女士
公示期自2025年3月27日至2024年4月8日,共计7个工作日。
息烽县自然资源局
2025年3月27日
扫一扫在手机打开当前页面
主办单位:息烽县人民政府办公室 联系方式:0851-87721549 地址:息烽县永阳街道县府路27号2号楼
息烽县人民政府版权所有 黔ICP备10201081号
公安备案号 52012202006106
技术支持:贵州多彩博虹科技有限公司 网站标识码:5201220001