• 今天是:
您当前所在的位置: 首页 » 政务公开 » 重点领域公开 » 重大建设项目 » 批准结果

息烽县自然资源局关于10万吨/年磷酸(锰)铁前驱体项目(一期)《建设工程规划许可证》(建字第520122202500011号)批后公布

字体: 打印本页 关闭本页 视力保护色:
  • 索引号: 000014349/2025-731195
  • 信息分类: 批准结果
  • 发布机构:
  • 发文日期:
  • 文号:
  • 是否有效:
  • 信息名称: 息烽县自然资源局关于10万吨/年磷酸(锰)铁前驱体项目(一期)《建设工程规划许可证》(建字第520122202500011号)批后公布

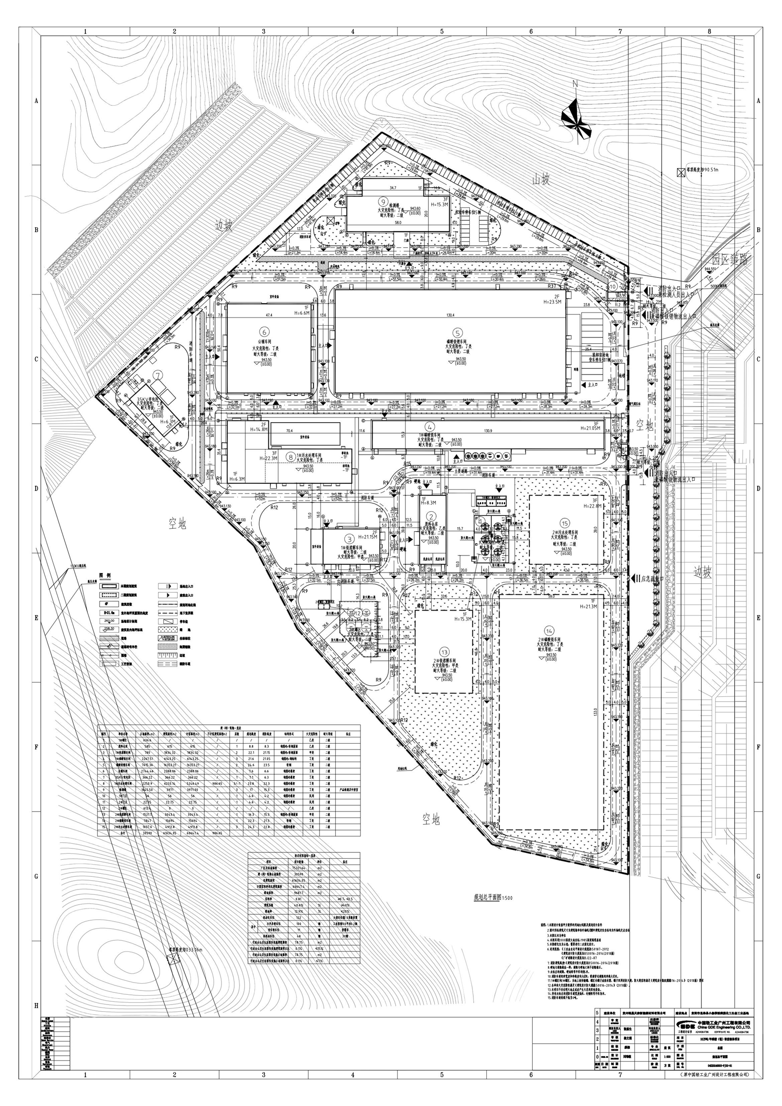
一、项目基本情况

项目名称:10万吨/年磷酸(锰)铁前驱体项目(一期)

建设单位:贵州锦晟天奈新能源材料有限公司

项目建设位置:息烽县小寨坝镇

建设规模:37983.85平方米(其中计容建筑面积36997.2平方米,不计容建筑面积986.65平方米。)

许可证号:建字第520122202500011号

审批部门:息烽县自然资源局

批准日期:2025年05月19日

二、已审批总图及效果图

扫一扫在手机打开当前页面

关于我们|联系我们|网站地图|网站帮助|网站声明|网站年报

主办单位:息烽县人民政府办公室 联系方式:0851-87721549   地址:息烽县永阳街道县府路27号2号楼

息烽县人民政府版权所有 黔ICP备10201081号 公安备案号 52012202006106

技术支持:贵州多彩博虹科技有限公司 网站标识码:5201220001